アパート
更新日:2025年06月16日
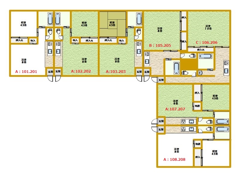
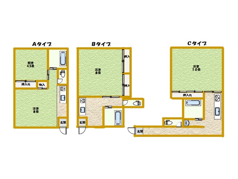
Feel Towada(Aタイプ)(学) 2階
賃料 2.4万円
間取1LDK
十和田市東二十三番町23-15









図面と現況が異なる場合には現況優先とさせて頂きます。また、実際の間取りは図面と反転する場合があります。
| 種 別 | アパート | 態 様 | 仲介 |
|---|---|---|---|
| 問合せ番号 | 10005 | ||
| コメント | リフォーム済みのお部屋です☆ | ||
| 物件名 | Feel Towada(Aタイプ)(学) | ||
| 所在地 | 十和田市東二十三番町23-15 | ||
| 交 通 | 北里大学 徒歩5分 | ||
| 月額賃料 | 2.4万円 | 管理費 | |
| 敷 金 | 賃料×1 | 礼 金 | 無し |
| 共益費 | 3,000円 | 仲介料 | 賃料+消費税 |
| 前家賃 | 賃料×1 | 契 約 | 3年or5年 |
| 間取り | 1LDK | ||
| 間取り詳細 | LDK8、洋4.5 | 占有面積 | 33.12㎡ |
| 築年月日 | 1987年3月 | 構 造 | 木造/2階建 |
| 部屋番号/階数 | 2階 | ベランダ | |
| 入居可能日 | 2026年3月下旬 | 保 険 | 要加入 |
| 駐車場 | 空き無し | ペット | 不可 |
| バ ス | 専用 | トイレ | シャワートイレ |
| 学区(小) | 学区(中) | ||
| 特 色 | エアコン、FFストーブ(自動給油)、モニターホン、インターネット無料使い放題、Wi-fi、室内洗濯機置場、バストイレ別、ガスコンロ対応、収納、宅配ボックス、都市ガス、洋室、家賃保証会社、二階以上 | ||
| 備 考 | |||



















