アパート
更新日:2024年07月16日
メゾンジュネスB棟 D号/2階
賃料 3.3万円
間取2K
青森県十和田市東十二番町18-24-7







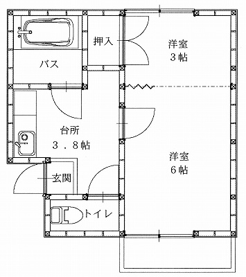
図面と現況が異なる場合には現況優先とさせて頂きます。また、実際の間取りは図面と反転する場合があります。
| 種 別 | アパート | 態 様 | 仲介 |
|---|---|---|---|
| 問合せ番号 | 10026 | ||
| コメント | 人気の都市ガス物件です☆南向き♪ | ||
| 物件名 | メゾンジュネスB棟 | ||
| 所在地 | 青森県十和田市東十二番町18-24-7 | ||
| 交 通 | |||
| 月額賃料 | 3.3万円 | 管理費 | |
| 敷 金 | 賃料×1 | 礼 金 | 賃料×1 |
| 共益費 | 無し | 仲介料 | 賃料+消費税 |
| 前家賃 | 賃料×1 | 契 約 | 2年 |
| 間取り | 2K | ||
| 間取り詳細 | K4、洋6、洋3 | 占有面積 | 28.16㎡ |
| 築年月日 | 1990年 | 構 造 | 木造/2階建 |
| 部屋番号/階数 | D号/2階 | ベランダ | 有 |
| 入居可能日 | 令和5年8月中旬 | 保 険 | 要加入 |
| 駐車場 | 1台 | ペット | 不可 |
| バ ス | 専用 | トイレ | シャワートイレ |
| 学区(小) | 学区(中) | ||
| 特 色 | エアコン、FFストーブ(自動給油)、モニターホン、室内洗濯機置場、バストイレ別、ガスコンロ対応、収納、押入れ、ベランダ、専用ゴミ置場、都市ガス、洋室、家賃保証会社、二階以上、角部屋 | ||
| 備 考 | 家賃保証会社の加入必須 保証委託料 26,664円(初回のみ) 口座引落手数料 330円/月 |
||
















