アパート
更新日:2025年05月01日
コーポサンライズ(学) 1階
賃料 4万円
間取1LDK
十和田市東二十一番町27-43













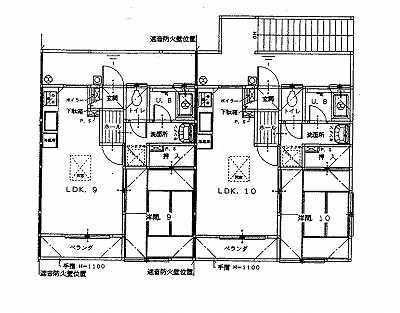
図面と現況が異なる場合には現況優先とさせて頂きます。また、実際の間取りは図面と反転する場合があります。
種 別 | アパート | 態 様 | 仲介 |
---|---|---|---|
問合せ番号 | 1974 | ||
コメント | |||
物件名 | コーポサンライズ(学) | ||
所在地 | 十和田市東二十一番町27-43 | ||
交 通 | 北里大学 徒歩5分 | ||
月額賃料 | 4万円 | 管理費 | |
敷 金 | 賃料×1 | 礼 金 | 無し |
共益費 | 仲介料 | 賃料+消費税 | |
前家賃 | 賃料×1 | 契 約 | 3年or5年 |
間取り | 1LDK | ||
間取り詳細 | 和6、LDK9.5 | 占有面積 | 37.48㎡ |
築年月日 | 2001年4月 | 構 造 | 木造/2階建 |
部屋番号/階数 | 1階 | ベランダ | |
入居可能日 | 2026年3月下旬 | 保 険 | 要加入 |
駐車場 | 無し | ペット | 相談可 (敷金2ヶ月) |
バ ス | トイレ | ウォシュレット | |
学区(小) | 学区(中) | ||
特 色 | エアコン、FFストーブ(自動給油)、インターネット無料使い放題、Wi-fi、室内洗濯機置場、バストイレ別、洗面化粧台、ガスコンロ対応、外部物置、クロゼット、ベランダ、専用ゴミ置場、プロパンガス、洋室、家賃保証会社 | ||
備 考 |