アパート
更新日:2025年09月29日
コーポ華(学) 1階
賃料 4.3万円
間取2LDK
青森県十和田市東二十一番町27-6













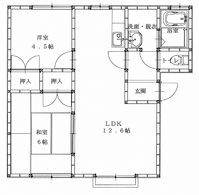
図面と現況が異なる場合には現況優先とさせて頂きます。また、実際の間取りは図面と反転する場合があります。
種 別 | アパート | 態 様 | 仲介 |
---|---|---|---|
問合せ番号 | 10039 | ||
コメント | 広々2LDK。4.5帖の洋室はウォークインクローゼットや書庫に使ってもいいかもしれませんね!インターネットは無料で使い放題です。ペット可も飼育可☆ | ||
物件名 | コーポ華(学) | ||
所在地 | 青森県十和田市東二十一番町27-6 | ||
交 通 | 北里大学まで徒歩10分 | ||
月額賃料 | 4.3万円 | 管理費 | |
敷 金 | 賃料×1 | 礼 金 | 無し |
共益費 | 無し | 仲介料 | 賃料+消費税 |
前家賃 | 賃料×1 | 契 約 | 3年or5年 |
間取り | 2LDK | ||
間取り詳細 | LDK12、和6、洋4.5 | 占有面積 | 47.9㎡ |
築年月日 | 1992年04月 | 構 造 | 木造/2階建 |
部屋番号/階数 | 1階 | ベランダ | |
入居可能日 | 2026年3月下旬 | 保 険 | 要加入 |
駐車場 | 1台 | ペット | 相談可 (ペット飼育の場合、敷金2ヶ月) |
バ ス | 専用 | トイレ | シャワートイレ |
学区(小) | 学区(中) | ||
特 色 | エアコン、FFストーブ(自動給油)、インターホン、インターネット無料使い放題、Wi-fi、室内洗濯機置場、バストイレ別、洗面化粧台、ガスコンロ対応、収納、外部物置、プロパンガス、家賃保証会社 | ||
備 考 |