アパート
更新日:2026年05月18日
リッチ館 102号/1階
賃料 4.8万円
間取2LDK
十和田市東三番町29-11








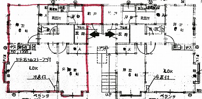
図面と現況が異なる場合には現況優先とさせて頂きます。また、実際の間取りは図面と反転する場合があります。
| 種 別 | アパート | 態 様 | 仲介 |
|---|---|---|---|
| 問合せ番号 | 2791 | ||
| コメント | 駐車場2台分込みの2LDKの物件です。 | ||
| 物件名 | リッチ館 | ||
| 所在地 | 十和田市東三番町29-11 | ||
| 交 通 | |||
| 月額賃料 | 4.8万円 | 管理費 | |
| 敷 金 | 賃料×1 | 礼 金 | 賃料×1 |
| 共益費 | 無し | 仲介料 | 賃料+消費税 |
| 前家賃 | 賃料×1 | 契 約 | 2年 |
| 間取り | 2LDK | ||
| 間取り詳細 | LDK10、洋6、洋6 | 占有面積 | 62.12㎡ |
| 築年月日 | 2006年 | 構 造 | 木造/2階建 |
| 部屋番号/階数 | 102号/1階 | ベランダ | 有 |
| 入居可能日 | 即時 | 保 険 | 要加入 |
| 駐車場 | 2台(2台分家賃に込み) | ペット | 不可 |
| バ ス | トイレ | シャワートイレ | |
| 学区(小) | 三本木小学校 | 学区(中) | 東中学校 |
| 特 色 | エアコン、FF暖房機、室内洗濯機置場、バストイレ別、洗面化粧台、ガスコンロ対応、収納、ベランダ、都市ガス、家賃保証会社、角部屋 | ||
| 備 考 | FF暖房機2台 家賃保証会社の加入必須 保証委託料 38,664円(初回のみ) 口座引落手数料 330円/月 |
||














