アパート
更新日:2026年01月10日
サンロード北里(学) 1階
賃料 5.5万円
間取1LDK
十和田市東二十三番町20-12










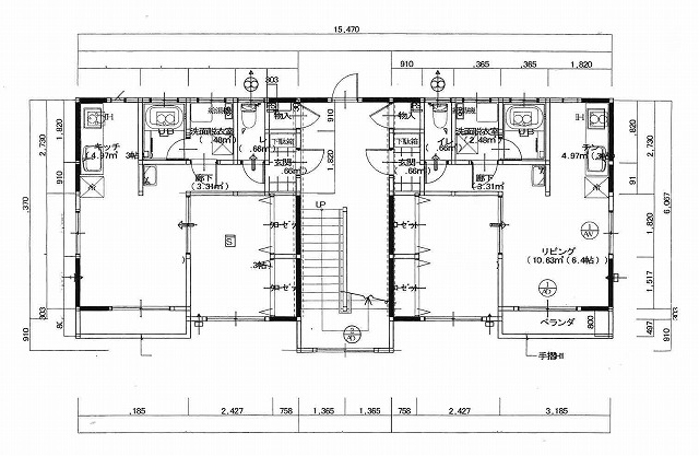
図面と現況が異なる場合には現況優先とさせて頂きます。また、実際の間取りは図面と反転する場合があります。
| 種 別 | アパート | 態 様 | 仲介 |
|---|---|---|---|
| 問合せ番号 | 10045 | ||
| コメント | 平成30年3月築の4世帯アパート、IHコンロ付き、給湯は灯油です。 | ||
| 物件名 | サンロード北里(学) | ||
| 所在地 | 十和田市東二十三番町20-12 | ||
| 交 通 | 北里大学まで徒歩5分 | ||
| 月額賃料 | 5.5万円 | 管理費 | |
| 敷 金 | 賃料×1 | 礼 金 | 無し |
| 共益費 | 無し | 仲介料 | 賃料+消費税 |
| 前家賃 | 賃料×1 | 契 約 | 3年or5年 |
| 間取り | 1LDK | ||
| 間取り詳細 | LDK10、洋5.3 | 占有面積 | 39.64㎡ |
| 築年月日 | 2018年3月 | 構 造 | 木造/2階建 |
| 部屋番号/階数 | 1階 | ベランダ | 有り |
| 入居可能日 | 2026年3月下旬 | 保 険 | 要加入 |
| 駐車場 | 1台 | ペット | 不可 |
| バ ス | 専用 | トイレ | シャワートイレ |
| 学区(小) | 学区(中) | ||
| 特 色 | エアコン、モニターホン、インターネット無料使い放題、Wi-fi、室内洗濯機置場、バストイレ別、洗面化粧台、IH、外部物置、クロゼット、ベランダ、洋室、学生限定、家賃保証会社、角部屋 | ||
| 備 考 | 灯油給湯 | ||





















