マンション
更新日:2026年02月21日
ヒーローマンション北里 302号/3階
賃料 5.2万円
間取1LDK
十和田市東二十四番町18-24












図面と現況が異なる場合には現況優先とさせて頂きます。また、実際の間取りは図面と反転する場合があります。
| 種 別 | マンション | 態 様 | 仲介 |
|---|---|---|---|
| 問合せ番号 | 10070 | ||
| コメント | 北里大学近くのマンションが募集中です☆LDKは17帖あり、広々お使いいただけます! | ||
| 物件名 | ヒーローマンション北里 | ||
| 所在地 | 十和田市東二十四番町18-24 | ||
| 交 通 | |||
| 月額賃料 | 5.2万円 | 管理費 | |
| 敷 金 | 賃料×1 | 礼 金 | 無し |
| 共益費 | 2,000円 | 仲介料 | 賃料+消費税 |
| 前家賃 | 賃料×1 | 契 約 | 2年 |
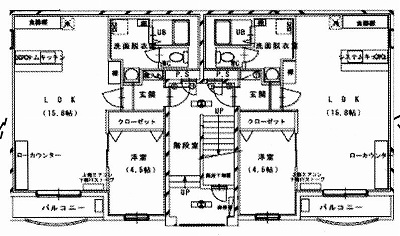
| 間取り | 1LDK | ||
| 間取り詳細 | LDK17、洋5.1 | 占有面積 | 51㎡ |
| 築年月日 | 2006年12月 | 構 造 | 鉄筋コンクリート造/3階建 |
| 部屋番号/階数 | 302号/3階 | ベランダ | 有 |
| 入居可能日 | 相談 | 保 険 | 要加入 |
| 駐車場 | 1台(3,300円/月) | ペット | 不可 |
| バ ス | 専用 | トイレ | シャワートイレ |
| 学区(小) | 学区(中) | ||
| 特 色 | エアコン、FF暖房機、モニターホン、インターネット対応、室内洗濯機置場、バストイレ別、浴室乾燥機、洗面化粧台、ガスコンロ付き、収納、外部物置、クロゼット、ベランダ、プロパンガス、洋室、家賃保証会社、角部屋、最上階 | ||
| 備 考 | 家賃保証会社の加入必須 保証委託料 45,840円(目安) 鍵交換代 16,500円~ |
||














